방있어요

LG/Honda 공장 15분 거리 New Single 3 Beds 2.5 Bath House for RENT

by Taega posted Oct 29, 2025
?

단축키

Prev이전 문서

Next다음 문서

ESC닫기

크게 작게 위로 아래로 게시글 수정 내역 댓글로 가기 인쇄
Extra Form
Region Other region
Specific Location Washington Court House Downtown, OH
Contact Information 로그인을 하셔야 보실 수 있습니다

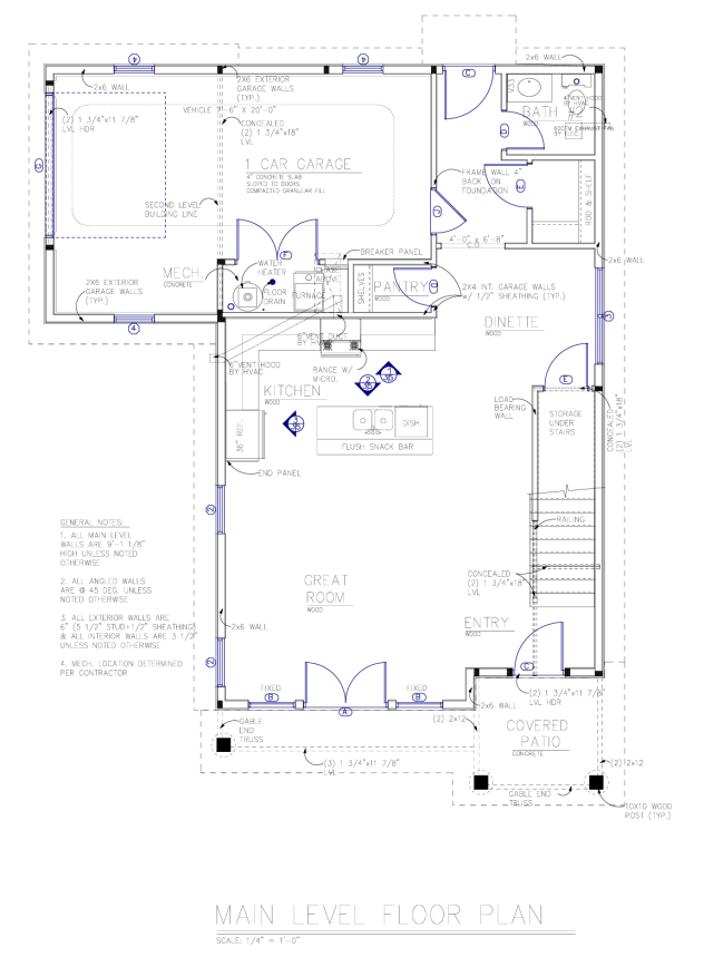
New Single Family House with 3 Beds 2.5 Bath House for RENT

  • 위치: Washington Court House Downtown, Ohio (LG/Honda 에서 15분 거리)
  • 싱글 하우스: New Construction (will be avialble in January, 2026)
  • 하우스 크기: 1700sf (3 Bds and 2.5 bath)
  • 주차 공간: 1 Car Indoor Garage + 집 앞 Street Parking
  • 렌트 기간: 협의 가능 (장/단기, 가구 비치 가능)
  • 유틸리티: 고효율 가스 난방 / 전기 냉방 (유틸리티 비용 절감)
  • 레이아웃: 첨부된 평면도 및 입면도 참조
  • 문의: 678-634-6626 문자 문의 (문자 소통 선호)

Downtown Washington Court House – Where Convenience Meets Comfort

  • 🚗 Only 15 minutes to LG/Honda EV Plant – Ideal for employees and contractors
  • 🛍️ Walkable access to shops, cafes, restaurants, and banks
  • 🏡 Quiet, safe residential neighborhood – Perfect for families or professionals
  • 🛣️ Close to I-71 – Easy commute to Columbus or Cincinnati
  • 🌳 Near parks and trails – Enjoy a balanced, healthy lifestyle

Main Floor.png

Second Floor.png

Front Ele.png

Right Ele.png

Rear Ele.png

Left Ele.png

 


Articles

1 2 3 4 5 6 7 8 9 10